Rozpojitelná kabelová průchodka effeff 10314-34, zadlabací
| ID produktu: | 28922 |
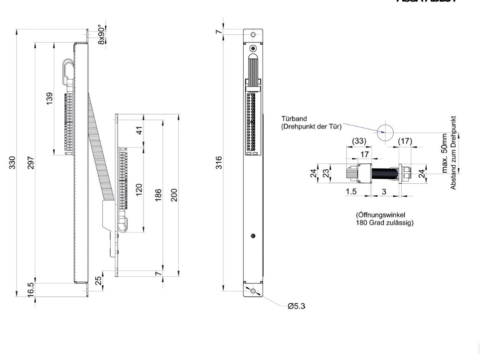
Kabelová průchodka rozpojitelná vhodná pro kombinaci nejen se zámky AssaAbloy
- Velmi odolná rozpojitelná průchodka pro těžký provoz.
- Testováno pro 1 000 000 otevření bez přerušení kabelových vodičů.
- Dveře a rámy mohou být vyráběny a montovány samostatně.
- Umožňuje kontrolu zapojení ve výrobním závodě před samotnou montáží.
- V případě potřeby je možné dveře snadno demontovat.
- Počet vodičů až 20
- Maximální úhel otevření dveří 110°

Přijímáme platby platebními kartami